Летний душ для дачи.
В жаркий летний период, находясь на даче отлично иметь летний душ, чтобы там освежиться. Немногие имеют на своих загородных дачах бассейны или небольшие водоемы. Для постройки бани требуется приличная сумма, и, кстати, не все люди любят париться. Даже при наличии баньки летний душ для дачи будет отличным средством для освежения в жаркие деньки.
Каждому человеку хотелось бы сэкономить на постройке и летний душ для дачи не исключение. В принципе, чтобы построить летний душ для дачи вам понадобиться не так уж и много материалов - каркас и бак для воды. Бак для летнего душа следует обернуть в клеенку или ПВХ - пленку. Конечно, это самый простой способ для установки душа, но нам необходимо купаться в нем весь сезон с мая по сентябрь включительно. В этом случае конструкция должна быть добротной.

Начать постройку летнего душа для дачи следует с выбора места установки душа. Место не должно сильно продуваться, расположить его лучше в стороне от сквозняков. Хотя летом ветерок и теплый, но все же желательно спрятаться от сильного потока воздуха, чтобы вас не просквозило. Таким образом, если вода в душе будет нагреваться от солнца, то летний душ следует установить в солнечном открытом месте, или хотя бы стоит поискать место, где солнечные лучи смогли бы прогревать бак для летнего душа с утра.

Еще один из самых важных моментов - летний душ следует устанавливать на возвышенном месте, чтобы был хороший отток воды. Это потому что прием душа требует большое количество воды от нескольких десятков до нескольких сотен литров, в зависимости от числа принимающих летний душ. Для нормальной работы душа необходимо создать условия хорошего отвода и быстрой утилизации сточной воды. А здесь могут возникнуть трудности. Для этого придется сделать сливную яму для летнего душа объемом 1-2 м 3. когда наступит жаркий период времени нагрузка на летний душ резко вырастет. Хочется обратить внимание, что жара абсолютно не влияет на дренирующие свойства грунта.

Только в том случае, если вы планируете устроить септик для летнего душа, то возможна еще одна ошибка - это расположении септика под самой душевой кабинкой. При больших объемах воды септик для летнего душа может заливаться и дренаж работает все хуже, что не добавляет приятных запахов. Возможно так же разрушение грунта и даже фундамента кабинки. Поэтому сток с летнего душа следует делать в нескольких метрах от душевой кабинки и септик с дренажем рядом.
Сток воды следует обустроить водоупорным слоем. Это можно произвести с помощью ПВХ - пленки, которую укладывают на наклонную насыпь. Вместо ПВХ - пленки можно использовать рубероид или гидростеклоизол или же просто бетонную стяжку с желобом, которая армируется металлической сеткой. Уклон располагают так, чтобы сток с летнего душа шел в сторону дренажной емкости или траншеи.

Для создания водоупорного слоя не следует использовать глину, потому что она со временем размоется и может залить дренажную канаву. Водосток следует делать проветриваемым, это позволит избежать возникновения неприятных запахов. Каркас кабинки для летнего душа обычно изготавливается из дерева. Однако при повышенной влажности древесина подвергается гниению, поэтому ее следует обработать специальными средствами.

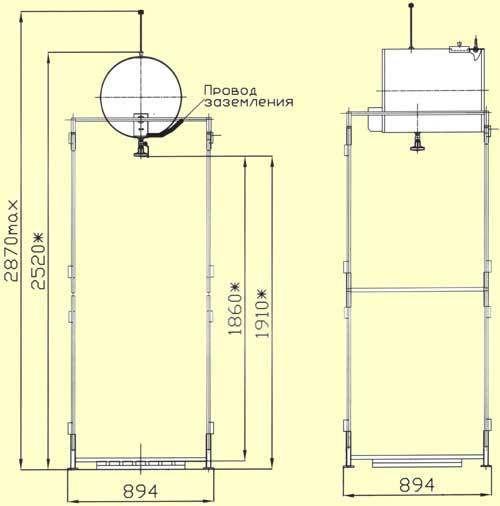
Высота летнего душа для дачи достигает 2, 5-3 метра. Из-за небольшой площади опоры такая конструкция может быть не устойчивой. Чтобы конструкция не завалилась, желательно организовать свайный фундамент. Свайный фундамент для летнего душа лучше всего сделать из труб длиной 1, 5-2 метра. Для этого специальным приспособлением пробуривают в земле отверстия глубиной 1-1, 5 м, учитывая, что труба должна торчать над уровнем грунта на высоту 20-30 сантиметров. Можно использовать металлические или асбестоцементные трубы. Диаметр трубы должен составляет примерно 90-100 мм. Бруса для каркас следует брать 100 х 100 мм.
Прежде чем заняться установкой душевой кабинки следует сделать проект летнего душа для дачи. Необходимо учесть, чтобы кабинка была удобной и чтобы человек смог мыться в душе в любое удобное для него время. Душ для дачи не должен представлять собой конструкцию туалета с бочкой на крыше.
Само пространство в кабинке должно быть не меньше 100 х 100 см, чтобы можно было не только поднять вверх руки, но еще и нагнуться без лишних проблем. Так как душ принимается в обнаженном виде, необходимо организовать защищенное от воды место, где можно оставить свою одежду и полотенце. Для раздевалки достаточно 60 см. Итак, получились внутренние размеры кабинки для летнего душа 160 х 100 см. Более удобная конструкция будет с размерами 190 х 140 см. Такие размеры удобны для постройки, потому что учитывая толщину стенок мы получаем размеры 200 х 150 см, для стандартных размеров доски это отличный безотходный вариант.
С размерами определились, теперь необходимо отметить на земле прямоугольник 170 х 110 см или 190 х 140 см. По углам устанавливаем фундамент из столбов. Далее устанавливаем обтесанные бруса и перевязываем столбы.
Лучше всего начать перевязку с верха. Для удобства следует собрать раму на земле и затем уже с помощью длинных болтов скрепить конструкцию. В случае если все оси совпадают и для скрепления используются длинные болты, конструкция должна быть прочной. Это позволит установить на крыше бочку объемом около 200 литров.
Теперь необходимо сделать перевязку внутри каркаса, она будет служить лагами пола душевой. Между соседними столбцами размещаются жесткие элементы (укосы), которые устанавливаются не в накладку, а в толще самой стены.
Пол для летнего душа может быть выполнен двумя вариантами. Во-первых, можно укладывать доски с наличием щелей, через которые будет выходить вода. Но часто через такие щели задувает холодный воздух в душ, и создает дискомфорт. Второй способ заключается в установке поддона в моечном отделении летнего душа. Слив воды можно через шланг производить. При таком способе нет необходимости делать под душем водоупорный слой. В принципе эту воду можно выпускать на траву, это будет как орошение.
Моечное отделение летнего душа следует отделить от раздевалки высоким порожком, чтобы не затекала вода. Чтобы вода не брызгала на одежду необходимо повесить водонепроницаемую шторку.
Чтобы не проникали сквозняки в летний душ, следует устанавливать плотно закрывающуюся дверь. Но в то же время от влаги ее не должно расклинивать. Для этого на дверь устанавливаются специальные накладные уплотнители. Зазор между уплотнителем и дверью достаточно большой, поэтому дверь не будет расклинивать, а два контура, которые имеются в уплотнителе, позволяют сохранить тепло.
Для наружной обивки летнего душа можно любой материал использовать. Можно обить душевую кабинку влагостойкой фанерой, ДВП, вагонкой и т. д. чтобы не портить стиль вашего двора, следует оформить душ в стиле соседних помещений. Только в том случае, если посадить влаголюбивые растения вокруг душа, они помогут быстрейшему освобождению дренажа.
Чтобы обеспечить купание в душе весь сезон, можно утеплить душевую кабинку, используя для этого пенополистирол. Для этого пространство каркаса заполняется пенополистиролом и обивается с помощью степлера полиэтиленовой пленкой. Поверх пленки внутреннюю отделку устраивают. Для внутренней отделки следует использовать материалы с водозащитными свойствами, это может быть прочная ПВХ - пленка, которую крепят рейками, покрытыми защитным слоем лака. Можно воспользоваться пластиковыми панелями, линолеумом и т. д. если покрытие будет деревянное, его следует тщательно обработать олифой, а затем покрасить.