Строительство беседки из дерева.
Там, где прежде старая яблоня щедро дарила тень, теперь появилась садовая беседка, построенная из дерева своими руками. Беседку решили соорудить по собственному проекту, причем индивидуальное изготовление оказалось весьма выгодным.
Как много жарких летних дней по выходным и во время отпуска, а также теплых вечеров провела за долгие годы семья домовладельцев под своей старой яблоней. Но пришел час, когда дерево, росшее перед домом, стало совсем трухлявым, да и большой стол со скамейками тоже рассохлись и обветшали - все это требовало замены.
Было рассмотрено множество самых разных вариантов: от простой маркизы, большого зонта либо тента до увитой плющом ажурной металлической беседки и даже деревянного дома. Однако в результате выбрали садовую деревянную беседку. Разумеется, в продаже были различные готовые комплекты, предназначенные для самостоятельной сборки всевозможных садовых построек, но они либо не подходили по размерам, либо не удовлетворяли конструктивным требованиям, либо не устраивали еще по каким-то причинам. Поэтому беседку решили соорудить по собственному проекту, причем индивидуальное изготовление оказалось весьма выгодным.
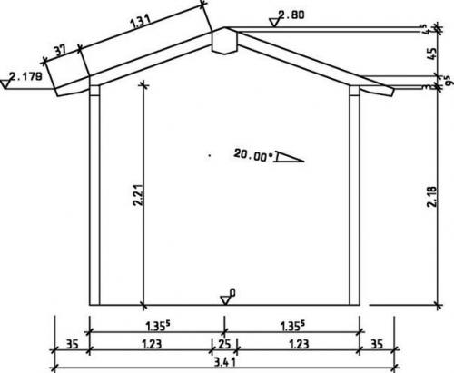
Чтобы в беседке можно было свободно разместить стол и стулья, под основание конструкции восьмиугольной формы выделили около 3 м. кроме того, беседка должна была быть полностью закрытой со стороны соседнего участка, обеспечивать надежную защиту от дождя и ветра, иметь достаточно широкий обзор и несколько навесных дверей, которые в зависимости от погодных условий можно снять или снова навесить.
Знакомый плотник помог хозяину в кратчайшие сроки спроектировать и построить уютную беседку. Все необходимые детали и элементы для нее были предварительно подготовлены в мастерской, поэтому сборка конструкции продвигалась очень быстро. В общей сложности примерно пять часов потребовалось для обработки деталей различными инструментами, а затем два дня ушло на возведение и отделку.
Балочная конструкция беседки решена как свободнонесущая, при этом восьмискатная крыша может обходиться без центральной опоры. Вместо нее восемь диагональных стропил крепятся к центральному (замковому) брусу. Дополнительные опоры (нарожники), расположенные под углом 90\xB0 к балкам верхней обвязки, стыкуются с диагональными стропилами под острым углом, что придает конструкции крыши необходимую жесткость. В качестве кровельного материала выбрана битумная гибкая черепица.
Этапы работы.
1. даже небольшие ошибки при разметке могут привести к необходимости все переделать.
2. для нанесения линий лучше всего пользоваться простым графитовым карандашом.
3. изготовление нарожников: чтобы сделать косой пропил, восемь балок зажимают вместе.
4. затем с помощью торцовочной пилы заготовки обрезают до необходимой длины.
5. скошенный торец балки обеспечивает более филигранный вид конструкции.
6. обработанные на профессиональном оборудовании 16 нарожников готовы к монтажу.
7. подготовка диагональных стропил: за счет врубок они будут держаться на верхней обвязке крыши.
8. для этого используют либо ручную циркулярную пилу с двумя установками угла наклона ….
9. … либо плотницкий фрезер, с помощью которого сделать врубку можно за один рабочий проход.
10. Теперь на каждом стропиле нужно аккуратно рассчитать и отметить вершину восьмиугольника.
11. Чтобы диагональные стропила точно образовали стороны восьмиугольника, их скашивают.
12. Затем стропила подрезают по заданной длине плотницкой дисковой пилой за один проход.
13. В вырезах зачищают углы, с помощью которых каждое стропило будет уложено на обвязку.
14. Соединения балок верхней и нижней обвязки выполняют путем выборки вполовину толщины бруса.
15. Для этого заготовки сначала пропиливают и затем зачищают, выравнивая поверхности стамеской.
16. Ту же врубку можно выполнить с помощью ручного плотницкого фрезера всего лишь за один проход.
17. В центре стойки отверстие высверливают? 20 мм для крепления в нем опорной конструкции.
18. Прикручивают опорную пластину, на которой будет держаться вся стоечная конструкция.
19. Вставляют опору, причем регулировочную гайку сначала произвольно устанавливают на резьбу.
20. Балки для восьмиугольной обвязки тщательно соединяют и фиксируют с помощью шурупов.
21. Используя лазерный нивелир, все стойки - одну за другой - точно выравнивают по высоте.
22. Чтобы стойки сохраняли строго вертикальное положение, их фиксируют вспомогательными рейками.
23. Все стойки выровнены, верхняя обвязка установлена, поперечные балки - тоже: каркас беседки готов, теперь можно ….
24. … бетонировать фундамент для опорных конструкций стоек (глубина отверстий должна быть ниже уровня промерзания грунта.
25. Сооружают стропильную ферму: вспомогательные рейки удерживают три диагональных стропила в нужном положении.
26. За счет установки замкового бруса восьмиугольного сечения стропильная конструкция будет удерживать себя сама.
27. Пришел черед и для остальных диагональных стропил и нарожников - теперь их можно укладывать и надежно крепить.
28. После фиксации последнего нарожника несущая конструкция крыши готова, затем ее накроют кровельным материалом.
29. Обрешетку - обшивку прибивают поверх стропил лицевой стороной вниз. Излишки длины обрезают ручной дисковой пилой.
30. Доски укладывают встык, сплошным полотном. Самую верхнюю доску нужно заранее отрезать по размеру и подогнать, так как ….
31. … из-за центрального восьмиугольного замкового бруса выполнить пропил непосредственно на крыше будет невозможно.
32. Полотна рубероида сначала только наживляют: позднее вместе с битумной черепицей он будет крепиться гвоздями.
33. Полотна рубероида настилают в направлении снизу вверх, внахлест (в этих местах их скрепляют.
34. При укладке черепицы каждую следующую полосу относительно предыдущей сдвигают.
35. В качестве конькового элемента используется конический колпак из оцинкованной листовой стали.
36. Завершающий этап: карандашные отметки и другие загрязнения удаляют с деталей конструкции. 37. Нижнюю часть каждой второй грани конструкции обшивают снаружи для защиты от ветра. 38. со стороны соседнего участка одну грань закрывают полностью. Готовую беседку обрабатывают защитной лазурью для дерева.








