Как самостоятельно изготовить лестницу.
Часть 1: проект.
Лестница в частном доме должна быть прочной, удобной и желательно недорогой. В этой и следующей статьях будет рассказано, как самостоятельно можно спроектировать, рассчитать необходимые размеры и изготовить лестницу, чтобы она удовлетворяла перечисленным требованиям.

В загородном доме лестница, соединяющая этажи, является едва ли не центральным звеном всего здания. От того, насколько правильно она сделана, зависит, будет ли удобно жить в этом доме. Считается, что изготовление лестницы - удел исключительно профессионалов. Отчасти это правильно. Без определенных знаний и навыков, инструментов и материалов, самостоятельно изготовить и смонтировать лестницу довольно трудно, да и итоговый результат может получиться далеким от профессионально изготовленных образцов. Однако трудно не означает невозможно. В случае если вы не профессионал, но владеете основными столярными инструментами: ножовкой, рубанком и стамеской, то самостоятельно изготовить лестницу вам вполне по силам.

В интернете можно найти достаточно много статей с рекомендациями по изготовлению лестниц своими руками. Одним общим их недостатком является то, что, как правило, там описывается процесс изготовления лестницы в месте, не накладывающем ограничений на ее итоговые размеры.

Мы поясним. Есть место, в котором необходимо сделать лестницу. Есть требования к удобству пользования этой лестницей - уклон, ширина и высота ступеней. Далее в этих статьях просто рассказывается, как сделать лестницу, исходя из этих требований, совершенно не учитывая тот факт, что далеко не всегда размеры, используемые при изготовлении, дадут результат, который сможет физически вписаться в имеющиеся габариты комнаты. А ведь этот фактор определяющим является! Даже при проектировании нового дома, если планируется в нем делать более одного этажа, место, форма и размеры лестницы изначально будут определять всю планировку будущего жилища.

Этапы проектирования лестницы.

Таким образом, первоочередной задачей, которую необходимо решить при самостоятельном изготовлении лестницы, является определение места, в котором она будет монтироваться. Тут необходимо учесть множество факторов: размеры и форма комнаты, наличие и расположение окон, расположение дверных проемов и тип межэтажных перекрытий. Кроме того, если второй этаж мансардный, то есть стены образованы наклонными скатами крыши, то выход с лестницы должен быть , внимание, только в месте, где расстояние от пола до потолка не менее двух метров. В противном случае человек рискует удариться головой о потолок.

Вторым этапом будет снятие всех размеров: расстояния от уровня пола предыдущего до уровня пола следующего этажа, формы, ширины и длины проема в потолке. Ошибка в измерениях в пару сантиметров может привести к плачевным результатам. Именно поэтому очень важно, чтобы размеры снимал человек, который и будет впоследствии делать лестницу.

Третий этап - это выбор формы и расчет основных элементов лестницы: ширина и высота ступеней, ширина самой лестницы. Именно на этом этапе подбираются такие размеры, чтобы обеспечить максимальное удобство пользования готовым изделием. Исходя из расчетных данных делается чертеж.

Последний этап - непосредственное изготовление и сборка лестницы на месте.

Далее будет рассказано, как выбрать форму лестницы и рассчитать ее размеры на конкретном примере. В следующей статье - расскажем и покажем, как ее изготовить и собрать.

Основные термины.
Для начала необходимо усвоить некоторые термины, которые нужно знать для расчета и изготовления лестницы. Начнем с определения видов лестниц:
Маршевая. Бывает нескольких видов:
Прямая - один прямой лестничный пролет - марш. Самый простой вариант и самый прочный. Занимает больше всего места в длину. Подходит для установки вдоль длинной стены. В этом случае почти не занимает полезного пространства;.
Поворотная - состоит из нескольких, соединенных в одну систему маршей. Используется при недостатке места. Как правило, пространство под лестницей используется в качестве вспомогательных помещений - кладовок, гардеробных и т. п. в свою очередь делится на несколько видов:
Г - образная (четвертьоборотная) - два марша, соединенные площадкой под углом 90\xB0;.
П - образная (полуоборотная) - два марша, соединенные общей площадкой под углом 180\xB0;.
3-х секционная - полуоборотная лестница, состоящая из трех маршей;.
Комбинированная - сочетает в себе элементы двух и более видов.
Винтовая или спиральная. Ступени имеют форму треугольников или трапеций, острыми углами направленными к центру. Занимает меньше всего места, но самая неудобная в эксплуатации.
Комбинированная. Состоит из нескольких маршей, соединенных элементами винтовых лестниц - забежными ступенями.
Теперь перейдем к элементам самой лестницы:
Основной элемент - это ступень - горизонтальная часть, куда ступает нога. Имеет следующие характеристики: длина, ширина и толщина. Ширина ступени должна быть в пределах 250-300 мм. Длина, именно она определяет общую ширину всей лестницы, 800-1200 мм, толщина 35-50 мм.
Подступенок - вертикальная часть, подпирающая ступень. Чтобы пользоваться лестницей было удобно, необходимо, чтобы его высота была в диапазоне 150-200 мм. Каждый подступенок дает подъем на одну ступень. Расстояние от передней кромки ступени до подступенка свесом ступени называется.
Силовой элемент любой лестницы - косоур или тетива. Косоур - доска с треугольными пропилами под ступень и прямоугольно примыкающему к ней подступенку. Образует лестницу, открытую с боков. Тетива - прямоугольная доска с пазами, в которые вставляются боковые торцы ступенек и подступенков. Лестницы, собранные в тетиву, прочнее лестниц с косоурами, поскольку тетивы образуют единое целое со ступенями и подступенками.
Боковые ограждения. Это перила и элементы под ними - балясины и им подобные.
Итак, с определениями разобрались, перейдем теперь к расчету лестниц.
Как рассчитать лестницу.
Как было сказано выше, лестница должна быть такой, чтобы ширина ступеней была в диапазоне 250-300 мм, а их высота, по сути это ширина подступенка, 150-200 мм. При соблюдении этих правил в итоге получится лестница с уклоном не более 40\xB0, то есть такая, по которой будет удобно ходить.
Есть простой алгоритм для расчета:
Рассчитываем количество ступеней в лестнице. Для этого берем первую величину - высоту потолков. Высота ступеней - 150-200 мм. Возьмем что-то среднее, например 175 мм. Делим высоту потолков на эту величину. Получаем количество подступенков. При расчетах следует учитывать, что последняя ступень - это, по сути, уровень пола следующего этажа. Поэтому реальное количество ступенек в лестнице на одну меньше количества подступенков.
Рассчитываем ширину ступеней при данной высоте. Берем длину лестничного марша. Делим ее на количество ступеней. Получаем ширину ступеней. В случае если она попадает в диапазон 250-300 мм, то задача решена. Лишь в том случае, если нет, то начинаем подбирать величины и форму лестницы. Комбинирование величинами, помимо всего, может дать еще и более удобные варианты.
Пример: имеем высоту потолка 2500 мм, длину проема 4000 мм. Вычисляем количество ступеней. 2500 / 175 = 14, 28 подступенков. Округляем до 14 штук, высота при этом чуть увеличивается до 178, 5 мм - это допустимо. Количество ступеней тогда 14 - 1 = 13 штук. Вычисляем ширину ступеней. 4000 / 13 = 307 мм. Это предварительный расчет, от которого будем отталкиваться. В принципе полученные значения уже дают неплохой результат. Однако, что будет, если чуть-чуть "Поиграть" с величинами, например, если уменьшить высоту подступенков? Первоначальный результат был 14 подступенков с высотой 178, 5 мм. Чтобы их сделать ниже, необходимо увеличить количество, например, до 15 штук. Тогда высота ступеней 2500 / 15 = 167 мм, а ширина 4000 / (15 - 1) = 286 мм. При использовании этих размеров лестница более удобной в эксплуатации получится.
Перейдем теперь к конкретному заданию. Имеем следующее помещение:
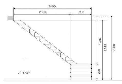
Необходимо сделать лестницу на второй этаж по дальней стене. В помещении под лестницей, его видно на фото, будет туалет и душевая. Чтобы увеличить расстояние от правой стены до кромки пола второго этажа и тем самым сделать лестницу более пологой, была убрана часть стены санузла. При этом получился проем длиной 3400 мм. Расстояние от уровня пола первого этажа, до уровня пола второго - 2800 мм. Рекомендуемая ширина лестницы - 900 мм. Вариант с винтовой лестницей не рассматривается, ввиду ее очевидного неудобства.
Смоделируем основные варианты лестниц.
Прямая маршевая.
Делать ее можно только вдоль стены, причем, перед ней необходимо оставить пространство хотя бы в 700 мм.
Можно рассчитать характеристики такой лестницы:
2800 / 175 = 16 подступенков или 15 ступеней.
3400 - 700 = 2400 мм - длина лестничного марша.
2400 / 15 = 160 мм - ширина ступеней.
Подбор размеров мало что может дать, поэтому, чтобы увеличить ширину ступеней, придется делать большие свесы, порядка 100 мм. Крутизна лестницы будет составлять больше 45\xB0. Подниматься по такой лестнице еще можно, а вот спускаться неудобно и даже опасно. Главным преимуществом такого варианта будет простота изготовления и малая занимаемая площадь.
Поворотная лестница с площадкой.
Рассчитаем это вариант.
При высоте подступенков в 175 мм необходимо 15 ступеней.
Наличие окна на примыкаемой стене вносит свои ограничения в длину первого марша - 1700 мм. С учетом площадки - 900 мм, остается 800 мм на ступени. Получается, что при ширине ступени не менее 250 мм в первом марше можно сделать не более трех ступеней. Площадка - это четвертая. Итого на второй марш остается 15 - 4 = 11 ступеней. Общий проем - 3400 мм. С учетом площадки на второй марш остается 3400 мм - 900 = 2500 мм. Ширина ступеней тогда в первом марше будет 2500 / 11 = 227 мм. Это уже неплохо, но, может, есть вариант лучше?
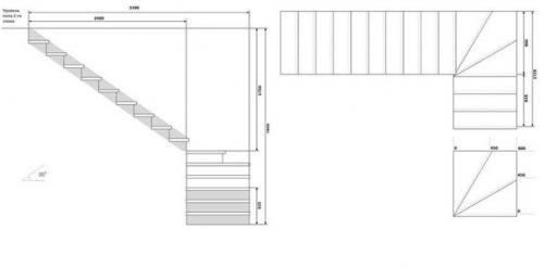
Комбинированный вариант поворотной лестницы с забежными ступеньками.
Рассчитаем этот вариант.
При размере подступенков 175 мм получаем количество ступеней равным 15. Очевидно, что первый марш такой лестницы будет аналогичен предыдущему варианту. Таким образом, на забежные ступени и второй марш остается 15 - 3 = 12 ступеней. Для удобства пользования винтовой частью лестницы оптимальное количество забежных ступеней для поворота на 90\xB0 должно быть равным трем. На второй марш остается 12 - 3 = 9 ступеней. Длина марша 3400 - 900 = 2500 мм. Ширина ступеней второго марша в этом случае будет 2500 / 9 = 278 мм. Получили величины - ширина ступени 278 мм, высота подступенка 175 мм - идеально вписывающиеся в необходимые диапазоны. Конструктивно такая лестница более сложная, но зато значительно удобнее конструкции с промежуточной площадкой, а тем более прямой лестницы. Именно на этом варианте мы и остановимся. По этим чертежам мы и будем делать лестницу. О том, как, будет рассказано в следующей статье.