Лайфхаки
Маленькие, полезные хитрости
Main menu
Главная
Новости
Статьи
Главная
»
Статьи
»
Летняя кухня и беседка, проект и фото.
Летняя кухня и беседка, проект и фото.
28.12.2019 в 17:48
Статьи
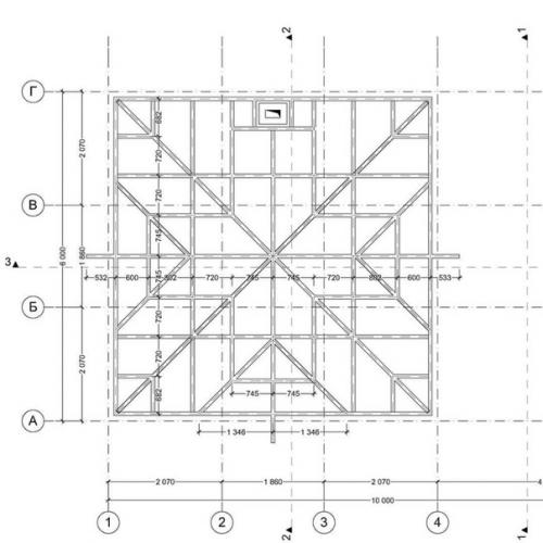
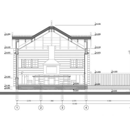
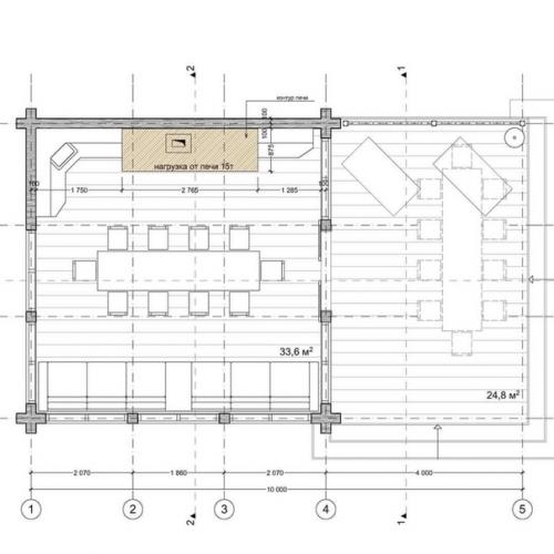
Площадь тёплого контура 33. 6 кв. м.
Площадь террасы 23. 8 кв. м.
Архитектор Дмитрий Свирин
.
Понравилось? Поделитесь с друзьями!
⇦
Англичане прокат ёлок придумали!
⇨
Узнав, что наша группа не очень знает страны Ссср, преподавательница заставила нас выучить все страны мира и столицы на английском.